В настоящее время в стране происходит развитие экономики, рыночных отношений, торговли товаров и услуг. В процессе длительного развития и эволюции товарно-денежных отношений появился такой вид организации торговли, как торговый центр. Сегодня по всей России полным ходом идет развитие и строительство торгово-развлекательных центров (ТРЦ).
Здания торгово-развлекательных комплексов имеют свои особенности:
- занимают огромные площади, в них одновременно может находиться до нескольких тысяч человек;
- в здании имеется большое количество помещений различного назначения с различной степенью пожарной загрузки;
- в этих зданиях люди находятся в различном эмоциональном состоянии.
На примере города Иваново с четырехсот пятидесяти тысячным населением количество крупных торговых центров составляет свыше 50 единиц. Ежедневно через них проходит в среднем до двух — трех тысяч человек.
Согласно справке, подготовленной Департаментом надзорной деятельности и профилактической работы по анализу обстановки с пожарами и последствий от них на территории Российской Федерации, можно отметить, что количество пожаров в торгово-развлекательных центрах остается все еще значительным (порядка 5%). Практически ежемесячно на территории России происходят крупные пожары в таких зданиях, причинами которых чаще всего служат неосторожное обращение с огнем и неисправности электрооборудования и проводки.
Именно поэтому обеспечение безопасности людей на таких объектах должно осуществляться на высшем уровне. Исходя из вышеперечисленных особенностей, торгово-развлекательных комплексов обеспечение пожарной безопасности носит актуальный характер.
В настоящее время крупные торговые помещения оборудуются, как правило, дренчерными и спринклерными установками пожаротушения.
Одними из самых простых и эффективных типов автоматических систем тушения пожара являются спринклерные установки пожаротушения. В основе конструкции лежит применение окончательных элементов водопроводной системы, которые способны самостоятельно открываться при достижении температуры в помещении определенного порогового значения.
Преимущества системы: работа в автоматическом режиме, отсутствие электропитания, отсутствие сложных схем обратной связи, постоянная готовность к работе, длительный срок эксплуатации.
В данной работе приводим расчет необходимого оборудования для обеспечения пожарной безопасности торговой площадки среднего размера (500 м2). Торговые помещения должны быть оборудованы следующими системами противопожарной защиты: а) внутренний противопожарный водопровод; б) автоматическая система спринклерного пожаротушения с интенсивностью орошения I=0,12 л/(с·м2) и суммарным расходом не менее 10л/с. Насосную станцию системы автоматического пожаротушения следует запроектировать согласно СП 10.13130.2009 в помещении первого этажа с самостоятельным выходом наружу. Помещение должно быть отапливаемым и должно отделяться от других помещений противопожарным перекрытием 1-го типа, противопожарными перегородками 1-го типа.
Для определения диаметров трубопроводов, типа и параметров основного водопитателя для спринклерной установки водяного пожаротушения проводился гидравлический расчет.
На основании СП 5.13130.2009 «Системы противопожарной защиты. Установки пожарной сигнализации и пожаротушения автоматические. Нормы и правила проектирования» выбирались исходные данные для проектирования:
- Группа помещений — 1;
- Интенсивность орошения водой — 0,08 л/(с∙м2);
- Расход воды не менее — 10 л/с;
- Площадь для расчета расхода воды — 60 м2;
- Продолжительность работы установок водяного пожаротушения — 30 мин;
- Максимальное расстояние между спринклерными оросителями — 4м2.
Указанные исходные данные соответствуют большинству типов торговых площадок.
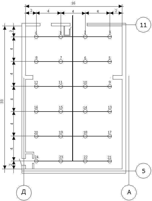
На основании проведенных расчетов предлагается следующая схема размещения оросителей спринклерного типа в торговом помещении (рис. 1).

На основании СП 5.13130.2009 «Системы противопожарной защиты. Установки пожарной сигнализации и пожаротушения автоматические. Нормы и правила проектирования» п. 5.2.23 — в спринклерных АУП на питающих и распределительных трубопроводах диаметром DN 65 и более допускается установка пожарных кранов по СП 10.13130.2009, ГОСТ Р 51049, ГОСТ Р 51115, ГОСТ Р 51844, ГОСТ Р 53278, ГОСТ Р 53279 и ГОСТ Р 53331.
На основании СП 10.13130.2009 «Системы противопожарной защиты. Внутренний противопожарный водопровод. Требования пожарной безопасности» и проведенных вычислений требуется обеспечить следующие технические характеристики:
- Количество струй — 2;
- Минимальный расход воды на внутреннее пожаротушение — 2,5 л/с на одну струю.
На основании СП 10.13130.2009 «Системы противопожарной защиты. Внутренний противопожарный водопровод. Требования пожарной безопасности» расчетные параметры пожарных кранов должны быть следующими: пожарный кран диметром 50 мм; напор 10 метров у пожарного крана с рукавом 20 метров; диаметр спрыска наконечника пожарного ствола 16 мм.
На основании выше изложенного можем сделать следующие выводы и предложения:
- Для систем автоматического пожаротушения рационально выбрать оросители марки СВН-10, клапан Greenell F-200 модели AV-1;
- Для подачи воды наилучшим образом зарекомендовал себя насос марки Д200-90б с электродвигателями мощностью 55,0 кВт;
- Для поддержания рабочего давления в сети рекомендуется установка жокей-насоса марки КМ80-50-200/2-5, включающийся при падении давления в сети на 1 атм.
Рассматриваемые в данной статье объекты являются довольно сложными, требующими исключительно комплексного и ответственного подхода. Работы по проектированию противопожарных систем должны начинаться с формирования технического задания на разработку систем противопожарной защиты и проводиться на этапе проектирования самого объекта защиты.