Введение в действие и актуализация приказа МВД России от 29.11.2017 № 900 требует выполнения необходимых организационных и технических мероприятий для реализации требований ДОПОГ [1].
Актуальность выполнения требований вышеуказанного приказа бесспорна для всех крупных производственно — промышленных структур, таких как перевозка ГСМ, эксплуатация автозаправочных станций и другие циклы применения углеводородного сырья и опасных грузов.
Испытаниям и проверкам должны подвергаться все типы цистерн, предназначенных для перевозки опасных грузов, вне зависимости от класса, вида и степени опасности грузов, для перевозки которых они будут использоваться или используются.
Так пригодность корпусов цистерн и их оборудования к перевозке опасных грузов подтверждается первоначальными, промежуточными, периодическими и внеплановыми испытаниям.
Эти испытания и проверки необходимо выполнять в аккредитованных лабораториях специализированных организаций.
Проверки включают также гидравлическое испытание на прочность элементов цистерны.
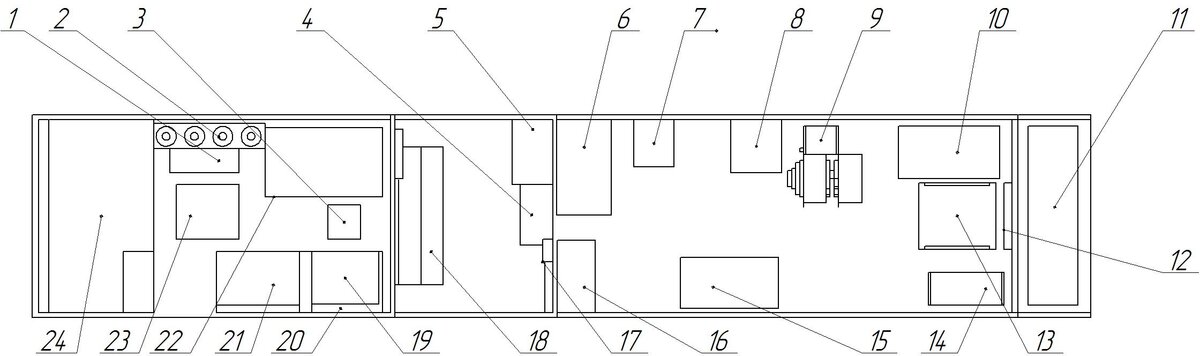
Проблема проверок заключается в сложности транспортировки отдельных цистерн, и поэтому оптимальным решением является применение мобильных комплексов, которые рекомендуется проектировать из отдельных технологических модулей, которые устанавливаются на специализированный транспорт или специально спроектированный кузов автомобиля.

В состав комплекса входят (рисунок 1):
- Распределитель газа;
- Баллоны с инертным газом;
- Осушитель;
- Шкаф для документации;
- Гардеробная;
- Верстак;
- Стенд для пластин;
- Расходомер жидкости;
- Гидростанция;
- Бак с жидкостью;
- Отсек для весовых устройств;
- Гидропанель;
- Стенд проверки аппаратуры;
- Гидростанция;
- Шкаф для аппаратуры неразрушающего контроля;
- Стеллаж с инструментами;
- Аптечка;
- Панель управления;
- Отсек работы с газом;
- Диспенсер;
- Дожимной компрессор;
- Компрессор;
- Винтовой компрессор;
- Электростанция дизельная.
Мобильный испытательный комплекс должен быть скомпонован для решения следующих задач [2]:
- техническое диагностирование цистерн;
- проверки автотранспортных средств, перевозящих опасные грузы;
- электрофизические измерения на цистернах;
- разработка эксплуатационной документации на цистерны;
- испытания напорно-всасывающих рукавов;
- проверка дыхательных клапанов цистерн;
- установку металлических таблиц на автоцистерны;
- неразрушающий контроль состояния цистерн;
- ревизия (освидетельствование) технологических элементов цистерн.
С учетом рекомендаций применения подобных комплексов [3] актуально заменить и модернизировать часть оборудования с целью решения указанных задач.
Установленное технологическое оборудование должно обеспечивать подготовку цистерн освидетельствованию и к техническому диагностированию, неразрушающий контроль цистерн и гидравлическое испытание.
Важным моментом является удалённая связь персонала и оборудования со стационарными базами, что позволяет удалённо обрабатывать информацию и своевременно подготавливать техническую документацию и свидетельства.
Поэтому к основным достоинствам таким комплексов можно отнести:
- автоматизация технологического процесса испытаний и освидетельствования;
- процесс освидетельствования баллонов осуществляется непосредственно в местах эксплуатации,
- значительно сокращается время простоя оборудования и автотранспорта;
- точность и производительность в процессе проверок;
- уменьшение трудовых и временных затрат.
Перспективно использование таких комплексов также в составе станций технического обслуживания транспортных средств и газобаллонного оборудования.